СТРОИТЕЛЬСТВО ДОМОВ И КОТТЕДЖЕЙ
в Иркутстке и области
✆ (3952) 671 444
Проекты и цены
Контакты
Новости
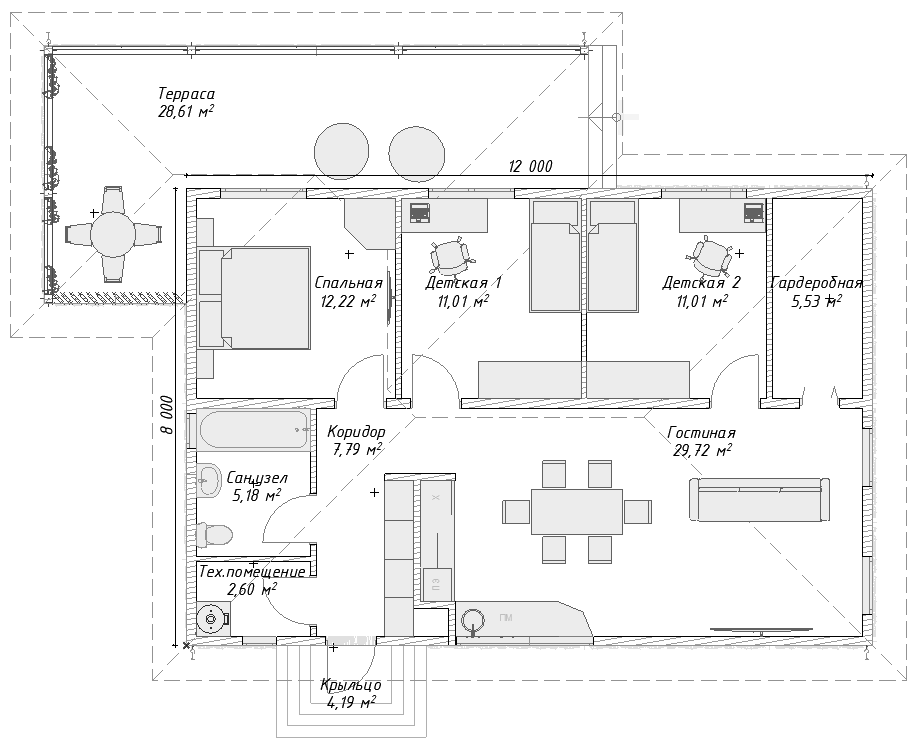
Проект дома ND-85
Проекты и цены
Новости
Контакты
Проектирование
Блог
Связаться с нами
Стоимость дома с "Предчистовой отделкой"
от 3 990 000 ₽
Возможна перепланировка
от 3% годовых
Построить в ипотеку
Заказать расчет дома
от 3 990 000 ₽
Возможна перепланировка
от 3% годовых
Построить в ипотеку
Заказать расчет дома
Заказать расчёт дома
Ваше имя
Ваш телефон
Жду звонка